إن الاحتفاظ بالرسم بتنسيق PDF هو عملية مهمة للغاية ومتكررة في كثير من الأحيان بالنسبة لأولئك الذين يشاركون في تصميم المباني في Archicad. يمكن إعداد الوثيقة بهذا الشكل كمرحلة وسيطة في تطوير المشروع ، وذلك لتشكيل الرسومات النهائية ، جاهزة للطباعة وإصدارها للعميل. في أي حال ، من الضروري غالبًا حفظ الرسومات إلى PDF.
يحتوي Archicad على أدوات مناسبة لحفظ الرسم إلى PDF. سننظر في طريقتين تقومان بتصدير رسم إلى مستند للقراءة.
محتوى
1. انتقل إلى موقع Grapisoft الرسمي وقم بتنزيل نسخة تجارية أو تجريبية من Archicad.

2. قم بتثبيت البرنامج بعد مطالبات المثبت. بعد اكتمال التثبيت ، قم بتشغيل البرنامج.

هذه الطريقة هي الأكثر بسيطة وبديهية. يكمن جوهرها في حقيقة أننا نقوم فقط بحفظ PDF في المساحة المحددة لمساحة العمل. هذه الطريقة مثالية للتوضيح السريع والرسمي للرسومات لغرض إجراء مزيد من التحرير.
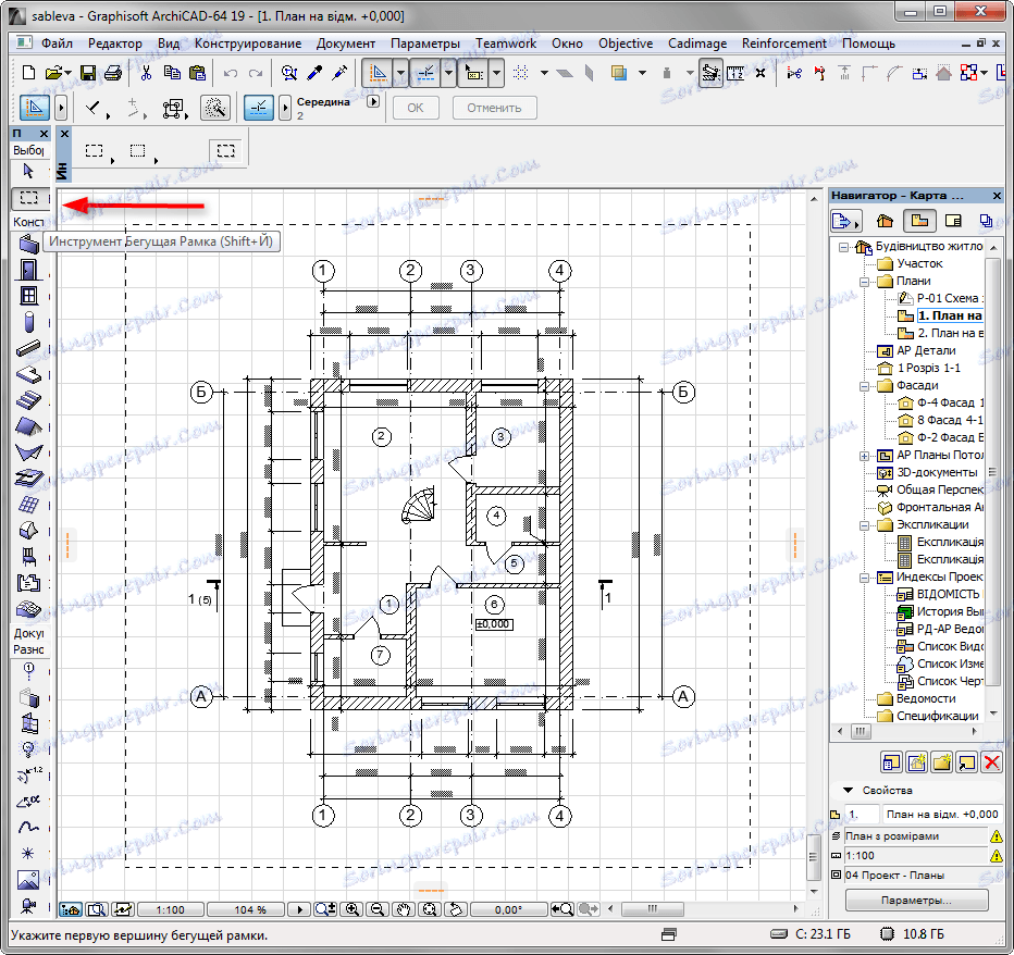
1. افتح ملف المشروع في Arcadecimal ، حدد حقل العمل مع الرسم الذي تريد حفظه ، على سبيل المثال خطة الكلمة.

2. في شريط الأدوات ، حدد أداة "تشغيل الإطار" وارسم المنطقة التي تريد الاحتفاظ بها عن طريق الضغط على زر الماوس الأيسر. يجب أن يكون الرسم داخل إطار يحتوي على كفاف متقطع.

3. انقر على علامة التبويب "ملف" في القائمة ، وحدد "حفظ باسم"

4. في نافذة "حفظ الخطة" التي تظهر ، حدد اسمًا للمستند ، وحدد "PDF" من القائمة المنسدلة "نوع الملف". حدد الموقع على القرص الثابت حيث سيتم حفظ المستند.

5. قبل حفظ الملف ، تحتاج إلى ضبط بعض الإعدادات الإضافية المهمة. انقر فوق إعداد الصفحة. في هذه النافذة ، يمكنك تعيين خصائص الورقة التي سيقع عليها الرسم. حدد الحجم (قياسي أو مخصص) واتجاه وقم بتعيين قيمة حقول الوثيقة. قم بتنفيذ التغييرات بالنقر فوق "موافق".

6. انتقل إلى "Document Settings في File Save Window." هنا ، قم بتعيين مقياس الرسم وموضعه على الورقة. في المربع "منطقة قابلة للطباعة" ، اترك "Running Frame Area". قم بتعريف نظام الألوان للمستند - اللون ، الأسود والأبيض أو في ظلال اللون الرمادي. انقر فوق موافق.
لاحظ أن المقياس والموضع سيتماشى مع حجم الورقة المعينة في إعدادات الصفحة.

7. بعد ذلك ، انقر فوق "حفظ". سيكون ملف PDF مع المعلمات المحددة متاحًا في المجلد المحدد أعلاه.
يتم استخدام الطريقة الثانية للادخار في PDF ، بشكل أساسي ، للرسومات النهائية ، والتي يتم وضعها وفقًا للمعايير وجاهزة للإصدار. في هذه الطريقة ، يتم وضع واحد أو أكثر من الرسومات أو الجداول أو الجداول في
قالب ورقة المعدة لمزيد من التصدير إلى PDF.
1. ابدأ المشروع في Archcad. في لوحة Navigator ، افتح "Book of Layouts" ، كما هو موضح في لقطة الشاشة. في القائمة ، حدد قالب التخطيط المكون مسبقًا للورقة.

2. انقر بزر الماوس الأيمن على التخطيط الذي تم فتحه حديثًا واختر وضع الرسم.

3. في النافذة التي تظهر ، حدد الرسم المطلوب وانقر فوق "مكان". سيظهر رسم في التنسيق.

4. حدد الرسم ، يمكنك تحريكه ، تدويره ، تعيين الحجم. حدد موضع جميع عناصر الورقة ، ثم ، في حين تبقى في كتاب التخطيط ، انقر فوق "ملف" ، "حفظ باسم".

5. قم بتعيين اسم الوثيقة ونوع ملف PDF.
6. أثناء البقاء في هذه النافذة ، انقر فوق "Document Settings". في المربع "المصدر" ، اترك "كل التخطيط". في الحقل "حفظ ملف PDF باسم ..." ، حدد مخططًا تفصيليًا للمستند بالألوان أو بالأبيض والأسود. انقر فوق موافق.

7. احفظ الملف.
اقرأ أيضا: برامج لتصميم المنازل
لذلك نظرنا في طريقتين لإنشاء ملف PDF في Archicad. نأمل أن يساعدوا في جعل عملك أسهل وأكثر إنتاجية!